Emilbnb In Der Sandstrasse
Preview only — see all hotel photos
See all 61 photos
Mostrar hotel no mapa
Emilbnb In Der Sandstrasse
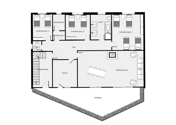
Para aproveitar as suas ferias em Baumberg, fique no o apartamento Emilbnb In Der Sandstrasse Baumberg de 2 quartos, que está a uma distância de aproximadamente 10 minutos a pé da Mona Mare e 6 km de Kleinbahn im Rheinpark. Este apartamento dispõe de terraço que se abre para a rua.
O apartamento também está situado nas proximidades de St. Dionysius. 3 km do apartamento Emilbnb In Der Sandstrasse de 180 m² encontrará Kreismuseum Zons.
Este apartamento oferece aos hóspedes área de estar, varanda e terraço, bem como confortos modernos como paredes à prova de som. Os visitantes do apartamento Emilbnb In Der Sandstrasse irão desfrutar do conforto de uma casa de banho com secador de cabelo, lençóis de banho e toalhas. Também encontrará chuveiro de corrediça, casa de banho separada e pia.
Entre as comodidades completas oferecidas está cozinha totalmente equipada com chaleira elétrica, refrigerador e artigos de vidro. A parragem de autocarros Am Kielsgraben fica a poucos quarteirões do alojamento.
Comodidades
Principais características
- Wi-Fi
- Animais
Instalações
- Proibido fumar em todas as áreas
- Wi-Fi
- Estacionamento
- Serviço Privado de Chegada/ Saída
- Animais Admitidos
- Segurança
- Detectores de fumo
- Estação de recarga para veículos elétricos
- Chaleira
- Utensílios de Cozinha
- Aquecimento
- Mini-bar
- Área de estar
- Terraço
- Facilidades de chá e café
- Mesa de jantar
- Serviço de Engomadoria
- Produtos de Higiene Pessoal gratuitos
- Pia no quarto
- TV LCD
- Chão atapetado
Política
- Crianças e camas extras
- Não existem berços no quarto.
Mapa
Atrações locais
Aeroportos
- Aeroporto em Colonia (38 km)
Comentários
100% de comentários verificados